技术资料动力锁选择和程序
如果您想查看选择程序和注意事项,请转到以下步骤。
如果您希望缩小产品系列范围或进行初步选择,
单击此处。
如果您已经决定了使用条件并希望进行详细的选择,
单击此处。
选择RE-SS系列
1.确认最大发生扭矩和最大发生推力负荷
最大扭矩和推力负载的计算需要使用系数传动能力。
※连接伺服电机、步进电机时,请将各自的最大扭矩 (峰值扭矩) 作为最大发生扭矩 (Tmax) 。
| SI单位 |
|---|
|
Tmax = 9550 × H n ・f Tmax=最大发生扭矩 (N・m)
|
| 重力单位 |
|---|
|
Tmax = 974 × H n ・f Tmax=最大发生扭矩 (kgf・m)
|
Pmax = Pax・f
- Pmax:最大产生推力负荷kN{kgf}
- Pax:推力负荷kN{kgf}
- f:使用系数
f:使用系数
| 负载状态 | 使用系数 | |
|---|---|---|
| 平稳无冲击负载 | 惯性小 | 1.5~2.5 |
| 轻微冲击负载 | 惯性中 | 2.0~4.0 |
| 大冲击负载 | 惯性大 | 3.0~5.0 |
仅施加扭矩时
比较由以上求得的Tmax和编目传输扭矩M t。
M t ≥Tmax→可用。
Mt < Tmax → 考虑增加模型编号。
同时施加扭矩和推力负荷时
计算合成负荷M R,并与传递扭矩M t进行比较。
MR = Tmax2 + (Pmax × d 2 )2
- Tmax:最大发生扭矩N・m{kgf・m}
- Pmax:最大发生止推负荷N{kgf}
- d:轴径m
比较由以上求得的M R和编目传递扭矩M t。
M t ≥M R →可以使用。
M t < M R → 考虑增加模型编号。
*本系列不能多个使用。
2.考虑轴和轮毂
(1) 材料强度的探讨
轴和轮毂在紧固过程中受到较大的表面压力。轴及轮毂请使用具有满足下式的强度的材质。
σ0.2S≧ 1.2 × P σ0.2B≧ 1.2 × P'
- P:轴侧面压MPa{kgf/mm 2}
- P':轮毂侧压力 MPa{kgf/mm 2}
- σ 0.2S:使用轴材料的屈服点应力MPa{kgf/mm 2}
- σ 0.2B:使用轮毂材料的屈服点应力MPa{kgf/mm 2}
钢材料强度一览表中列出了典型钢材料的屈服点值,请参阅。
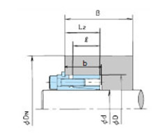
(2)考虑轮毂外径
请参阅 RE-SS 系列主要规格页面。
对于表格中未列出的材料,请使用以下公式计算所需的轮毂外径。
轮毂外径D N ≧ D σ0.2B + K 3 ・P' σ0.2B- K 3 ・P'
- D N:轮毂外径(mm)
- D:轮毂内径(mm)
- P':轮毂侧压力 MPa{kgf/mm 2}
- σ 0.2B:使用轮毂材料的屈服点应力MPa{kgf/mm 2}
- K3:轮毂形状系数(请参考各产品的主要规格页面。)
(3) 空心轴内径的探讨
空心轴内径请用下式计算。
空心轴内径d B ≦ d × σ0.2S- 2・P・K 3 σ0.2S
- d B:空心轴内径mm
- d:轴径mm
- P:轴侧面压MPa{kgf/mm 2}
- σ0.2S:使用轴材料的屈服点应力MPa{kgf/mm 2}
- K3:轮毂形状系数(请参考各产品的主要规格页面。)
