技术资料 直线作动机 动力千斤顶 技术资料
容许失稳载荷计算公式
千斤顶的螺纹轴可容许的失稳负荷按下式计算。
PCR = m×
d2
L
2
确保 P CR > W×Sf。
P CR:容许失稳载荷N{kgf}
d:螺纹根部直径(mm)(请参考各产品的主要规格页面。)
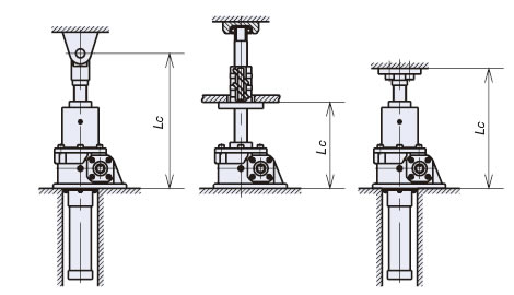
m:支撑系数(请从下图中选择安装状态。)
L:作用点之间的距离(mm)
(各机架编号对应的最大尺寸请参见尺寸表。如需开端金具,请参考开端金具尺寸。)
W:1台千斤顶的负荷N{kgf}
Sf:失稳安全率 (一般为4)
安装状态
A座固定单轴端自由
| m | |
|---|---|
| SI单位 | 2.5×104 |
| 重力单位 | {2.5×103} |
B两端凸台支撑
| m | |
|---|---|
| SI单位 | 10×104 |
| 重力单位 | {10×103} |
C座固定单轴端支撑/固定
| m | |
|---|---|
| SI单位 | 20×104 |
| 重力单位 | {20×103} |
| SI单位 |
|---|
|
在负荷49000N、安装状态C (底座固定-轴端支撑/固定) 下使用JWM100USH5JI时,计算P CR。
|
| {重力单位} |
|---|
|
在负荷5000kgf、安装状态C (底座固定-轴端支撑/固定) 下使用JWM100USH5JI时,计算P CR。
|
