技术资料机械式保护机器TG传感器安装
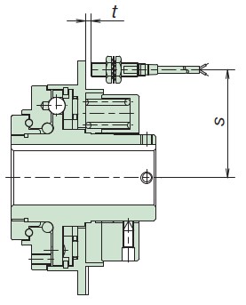
- TG传感器的检测距离为1.5毫米。将扭矩过载保护装置调整到下表所示的尺寸(s,t),防震装置不触发,并确认TG传感器处于非检测状态(侧面的操作指示灯亮起)。
- 接下来,触发扭矩过载保护装置。然后,用手旋转已触发的扭矩过载保护装置,确认TG传感器处于检测状态(侧面的工作指示灯熄灭),并且传感器板没有受到干扰,然后重置扭矩过载保护装置。
| s | t | 传感板移动量 | |
|---|---|---|---|
| TGB08-L, M, H | 19.2 | 1.2 | 0.9 |
| TGB12-L, M, H | 22.7 | 1.2 | 1.0 |
| TGB16-L, M, H | 27.5 | 1.2 | 1.2 |
| t | 传感板移动量 | |
|---|---|---|
| TGB20-H | 2.0~3.2 | 1.8 |
| TGB30-L, H | 2.2~3.4 | 2.0 |
| TGB50-L, M, H | 2.9~4.1 | 2.7 |
| t | 传感板移动量 | |
|---|---|---|
| TGB70-H | 3.5~4.7 | 3.3 |
| TGB90-L, H | 5.6~6.8 | 5.4 |
| TGB110-L, H | 6.2~7.4 | 6.0 |
| TGB130-L, H | 6.8~8.0 | 6.6 |
| s | t | 外壳移动量 | |
|---|---|---|---|
| TGE17 | 34 | 2.2±0.2 | 1.6 |
| TGE25 | 48 | 2.6±0.2 | 2.0 |
| TGE35 | 60 | 3.0±0.2 | 2.4 |
| TGE50 | 80 | 3.8±0.2 | 3.2 |
| s | t | 板移量 | |
|---|---|---|---|
| TGX10 | 29.9 | 1.2 | 1.4 |
| TGX20 | 28.3 | 1.2 | 1.6 |
| TGX35 | 29.5 | 1.2 | 2.0 |
| TGX50 | 35.6 | 1.2 | 2.6 |
| TGX70 | 34.5 | 1.2 | 3.5 |
笔记)
安装在扭矩过载保护装置上的 TG 传感器只能径向安装,如左图所示。
你不能。
| s | t | 板移量 | |
|---|---|---|---|
| TGX10-C | 36.5 | 2.1~2.8 | 1.3 |
| TGX20-C | 45 | 2.4~3.1 | 1.6 |
| TGX35-C | 59 | 2.7~3.4 | 1.9 |
| TGX50-C | 83 | 3.2~3.9 | 2.4 |
| TGX70-C | 105 | 4.1~4.8 | 3.3 |
笔记)
对于连接到联轴器式系统的 TG 传感器,建议采用水平方向,如左图所示。
如果您需要径向安装,请联系我们。
| s | t | 外壳移动量 | |
|---|---|---|---|
| TGF20 | 46 | 1.8±0.2 | 1.2 |
| TGF30 | 60 | 2.4±0.2 | 1.8 |
| TGF45 | 78 | 2.8±0.2 | 2.2 |
| TGF65 | 100 | 3.3±0.2 | 2.7 |
| TGF90 | 136 | 5.6±0.2 | 5.0 |

